Casa Semi-Indipendente | Vendita
O’Donnellan & Joyce Auctioneers are pleased to offer to market this excellent semi-detached residence in the popular Cluain Dara estate of Knocknacarra.
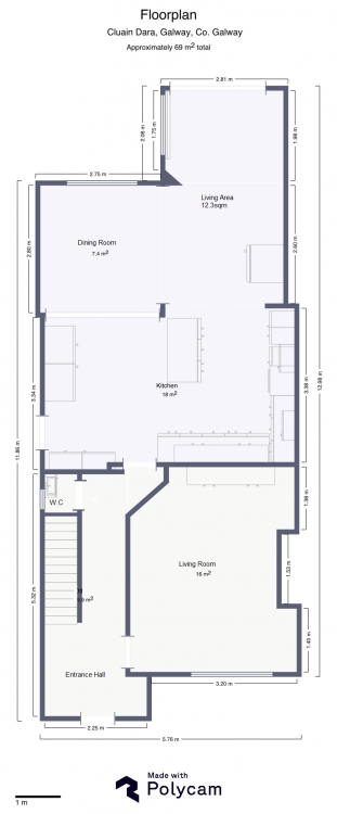
No.55 Cluain Dara is an exceptional home with an abundance of living accommodation & reception space with approximately 133.4 sq.m throughout.
Originally constructed in 1997, the property has been well maintained & further enhanced by the current owners.
The ground floor is arranged between a large welcoming hall with under-stairs guest bathroom, living room with inserted-stove fireplace and a very impressive kitchen-dining room that has been fully extended & modernised with features such as upgraded kitchen with central island countertop & double doors leading to the private garden.
Upstairs is arranged between three large bedrooms, the main bedroom benefitting from its own en-suite, and a main family bathroom, as well as a walk-up attic space perfect for ease-of-access storage, spacious rec room & potential for a variety of uses.
Externally, no.55 Cluain Dara offers off-street parking to the front for several vehicles & a low maintenance patio garden with solid-built shed.
Cluain Dara is a popular residential estate of Knocknacarra with a large central green space ideal for family living.
Situated just off of the Western Distributor Road in the popular Knocknacarra area, the estate is well serviced for local amenities such as Tesco Supermarket & Gateway Retail Park within close proximity, whilst outdoor attractions are within easy reach including Cappagh Fields, Barna Woods, McGraths Field & Silver Strand.
Additionally, the area is popular for young families due to quality national & secondary schools nearby, whilst quality transport links give easy access to all parts of Galway City.
No.55 Cluain Dara is an ideal property for a variety of purchasers looking for a turn-key condition, excellent accommodation space & an ideal residential location.
Viewing is highly recommended.
Keep up to-date with NEW PROPERTIES by registering your details on our database
For Further details please contact our office on 091-564212 OFFICE OPENING HOURS - MON TO FRI 9AM TO 5:30PM
Properties can be viewed on our website www.odj.ie
NOTE: These particulars are not to be considered a formal offer. They are for information only and give a general idea of the property. They are not to be taken as forming any part of a resulting contract, nor to be relied upon as statements or representations of fact. Whilst every care is taken in their preparation, neither O’Donnellan & Joyce Auctioneers nor the vendor accept any liability as to their accuracy. Intending purchasers must satisfy themselves by personal inspection or otherwise as to the correctness of these particulars. No person in the employment of O’Donnellan & Joyce Auctioneers has any authority to make or give any representation or warranty whatever in relation to this property.