Nous utilisons des cookies pour personnaliser le contenu, fournir des fonctionnalités de médias sociaux et analyser notre trafic et soutenir nos clients. Nous partageons également des informations sur votre utilisation de notre site avec nos partenaires de médias sociaux, de publicité et d'analyse qui peuvent les combiner avec d'autres informations que vous leur avez fournies ou qu'ils ont collectées lors de votre utilisation de leurs services. Vous consentez à nos cookies si vous continuez à utiliser notre site Web. Apprendre encore plus

12 Marlton Court, Wicklow, Co. Wicklow, A67 YT52

Maison individuelle | Vente

Des lits:
4
Thermes:
3

Détails

Detached 4 bedroom family home with large garden and detached garage

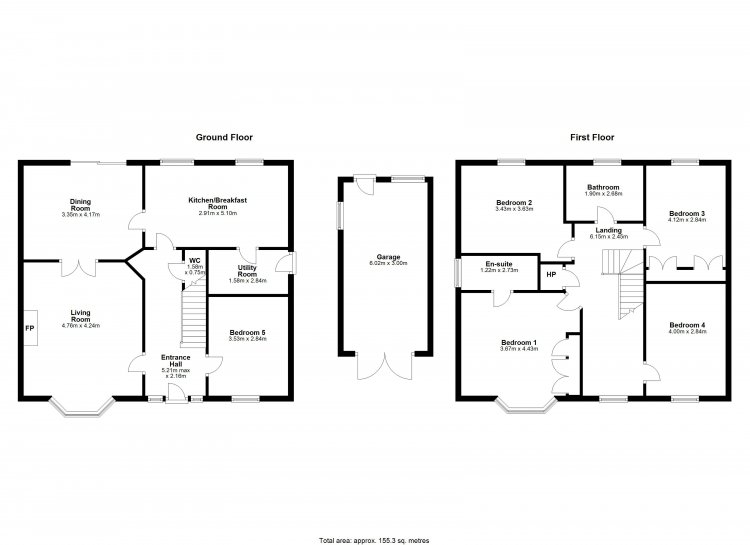
Forkin Property are delighted to present 12 Marlton Court to the open market For Sale. This well presented 4 bedroom, 3 bathroom detached family home offers circa 15 sq.m of bright living space in a truly enviable, central location. Offered to the market in good condition both inside and out but could do with some modernising. No.12 offers a superb opportunity for a purchasers to put their own stamp on a detached house close to the town centre. This property is sure to impress all viewers from first time buyers to traders up and everyone in between.

Ground floor accommodation comprises of entrance hall, spacious living room, dining room, large fully fitted kitchen/breakfast room , utility room and under stairs guest WC. On the first floor there is a good sized landing area with hot press off which we find 4 double bedrooms with master en-suite and full family bathroom.

To the front there is off street parking for 2-3 cars on a large driveway. To the side of the property there is a large detached garage that could be converted to a home office, gym, or further accommodation. To the rear of the property there is a large, south-west facing, back garden with ample room to extend (Subject to Planning Permission).

This property is located in a very quiet road with views of the surrounding countryside in a highly sought after family orientated development conveniently located within walking distance of Wicklow town centre and all its services, amenities and facilities. Local amenities include; supermarkets, shops, restaurants, bus stop, train station and many sports clubs and leisure facilities. There are a number of creches and schools close by including: Little Explorers Creche, Wicklow Educate Together primary school and Colaiste Chill Mhantain secondary school all of which are within a 5-10 minute walk.

To fully appreciate this large family home, viewings are highly recommended!


Détails de la carte


Agent immobilier

Matt Forkin

Estate Agent

Contact Matt